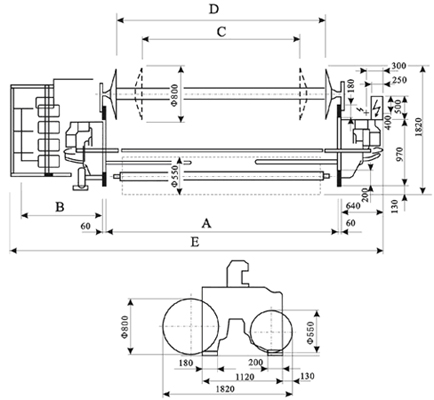
【外形尺寸簡圖】
.jpg)
公稱筘幅(cm) A(mm) B(mm) C(mm) D(mm) E(mm)
150 1910 1193 700 1510 4430
190 2310 1193 1100 1910 4830
210 2510 1193 1300 2110 5030
230 2710 1193 1500 2310 5230
260 3130 1193 1800 2690 5650
280 3330 1193 2000 2890 5850
320 3730 1193 2400 3290 6250
340 3930 1193 2600 3490 6450
360 4130 1193 2800 3690 6650
380 4330 1193 3000 3890 6850
420 4730 1193 3400 4290 7250
440 4930 1193 3600 4490 7450
460 5130 1193 3800 4690 7650
地址:浙江省新昌縣高新技術產業園區(南巖)日發數字科技園
電話:0575-86299066
傳真:0575-86299077
郵編:312500
E-MAIL:rifatm@mail.sxptt.zj.cn rifa.tm@mail.rifa.com.cn
網址:www.rifa.com.cn
<<上一頁[1][2][3]