- [新聞]-->越劍成功研發新一代YJKB800D高速電腦空包機并批量生產
- [新聞]-->齊賢打造中國紡機名鎮 浙江越劍名列行業前列
- [新聞]-->越劍機械:強健肌體拼市場
- [產品]-->RS2100系列劍桿織機全伺服電控系統
- [產品]-->YJ2000型 180/200/230/250/280(電腦)毛巾劍桿織機
- [產品]-->YJ736型 200/230/250/280撓性劍桿織機
產品推薦
產品分類
聯系方式
- 聯系人:張新蓮
- 郵 箱:liang@mail.sxptt.zj.cn
- 地 址:浙江省紹興齊賢鎮越劍集團1
- 電 話:0575-85181411
- 傳 真:0575-85188323
- 網 址:http://www.yuejian.com.cn
YJ800DT型144/168/192/216/240/264高速電腦加彈機(300D粗絲)
發布時間:2012-09-20
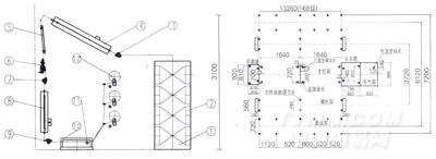
主要技術參數
錠數 144、168、192、216、 240錠
最高機械速度 600m/min( lI羅拉線速度)
假捻器 疊盤式摩擦假捻器
第一熱箱 聯苯氣相加熱(長度為1.8m)
第二熱箱 聯苯氣相加熱(長1.2m)(可選用電加熱)
冷軌長度 720mm
摩擦輥直徑 Φ90mm
節距 1520mm
錠距 110/(115+132 )mm
加工纖度范圍 55 - 660 dtex
原絲最大尺寸 Φ435 * 120mm
卷裝標準重量 4.5kg
卷裝尺寸 Φ250 * 250mm(雙錐形筒子,錐度75°或直邊)
外形尺寸(長x寬x高) 14100*6920*3100 mm (168錠)
整機功率 裝機功率 49.5KW
有效功率 29.5KW
用途:
該機可將粗D、400D、450D、600D粗量、滌綸、綿綸等無捻原絲,通過加捻器變形加工成具有高彈、中彈、低彈性能的彈力絲,若配以網絡部件,該機可加工網絡絲。
性能:
1、第一熱箱(變形熱箱)和第二熱箱(定形熱箱)均采用聯苯氣相加熱,由計算機集中控制加溫和控溫,控溫精度為±1℃,確保每個錠位溫度的一致性,利于染色的均勻性。
2、該機設計成兩測相對獨立,紡絲工藝可以單獨設置,可以滿足用戶一臺機可以同時紡制兩種規格的絲。
3、采用進口龍帶和丹麥丹佛斯變頻器,全機關鍵部位的軸承都為進口軸承,確保機器的性能。
4、采用靈活可靠的862型假捻器,假捻器最高轉速可達14400轉/分,可選擇6mm和9mm摩擦片,以滿足不同纖度,不同品種彈力絲加工需要。
5、電氣系統采用交流異步電機變頻調速控制技術,全機傳動采用測速反饋系統實現閉環拖動,控制速度精度小于1.5‰,觸摸屏操作技術,更加方便了工藝參數的設置。
6、傳動端采用同步齒形帶傳動,結構簡單,噪音小。
7、采用特殊結構的導絲成型部件,配以精密的電氣控制,實現了精密的卷繞,有效防止了重疊的出現,確保筒子成形良好及退繞的順利性。






